x
Prevenção Projetos de Incêndio

Prevenção Projetos de Incêndio Pinhais

 Projeto de Incêndio em Pinhais

Soluções completas e aprovadas para sua tranquilidade.

 Laudo AVCB Pinhais

A garantia da sua segurança e a conformidade legal para seu patrimônio.

 

 Segurança Contra Incêndio Pinhais

Proteja sua vida e seu patrimônio com soluções eficazes.

 

 ART Projeto Incêndio Pinhais

Sua ART para Projeto de Incêndio em Pinhais com agilidade e total conformidade.

 

Sobre nós

Projetos de Incêndio Pinhais

Projetos de Incêndio em Pinhais: Sua Segurança em Primeiro Lugar!

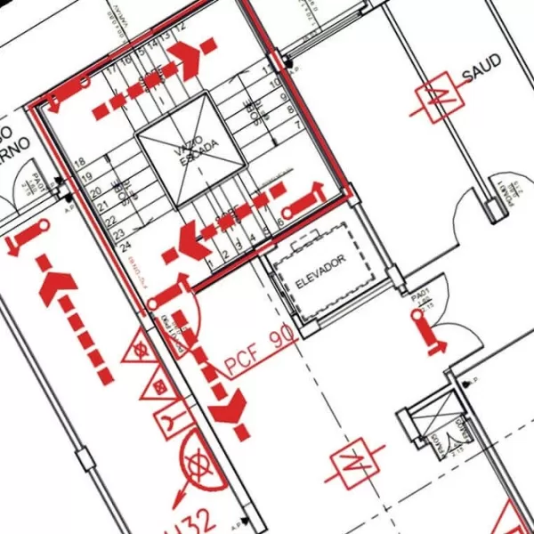
Garanta a proteção do seu patrimônio e a vida das pessoas com nossos projetos de segurança contra incêndio em Pinhais. Desenvolvemos soluções completas e personalizadas, desde a concepção até a aprovação junto ao Corpo de Bombeiros. Atendemos todas as normas técnicas e legislações vigentes, oferecendo tranquilidade e conformidade para sua edificação. Conte com nossa expertise para sistemas de detecção, alarme, hidrantes, extintores e saídas de emergência, sempre visando a máxima eficácia e segurança.

Projetos Contra Incêndio Pinhais

Projetos de hidrantes, sprinklers, detecção e alarme.

Elaboração de projetos de combate a incêndio

Projetos de Incêndio Pinhais

Projetos de Incêndio Pinhais  Projeto de Prevenção de Incendio Alarmes de Incendio curitiba  Engenharia de incêndio  extintores de incendio curitiba  engenharia contra incendio parana

Curitiba

Curitiba, a capital do Paraná,  é conhecida por sua qualidade de vida e planejamento urbano. Reconhecida internacionalmente por suas soluções em transporte público e preservação ambiental, Curitiba é um exemplo de desenvolvimento sustentável e oferece aos seus habitantes e visitantes uma experiência única, combinando natureza, cultura e modernidade.

Procurando Prevenção de Incêndio em Pinhais? Clique aqui e fale com vendas.

p